Africa
Le Parc Chiricou
Il progetto Parco KIRIKOU, è una soluzione per i luoghi urbani che hanno una vocazione naturale ad accogliere bambini, giovani e adulti durante il loro tempo libero. È un luogo organizzato per riscoprire le radici storiche e culturali della popolazione senegalese e, allo stesso tempo, per creare diverse forme di intrattenimento. Il parco è organizzato per accogliere tutte le funzioni di svago, relax e benessere disposte lungo itinerari tematici ispirati alla storia, ai miti e alle fiabe senegalesi e, in generale, africane.
Per: Comune di Dakar - Senegal
Progettisti: Ghazi Ben Ahmed, Arch. Giovanni Corradetti, Arch. Ferdinando Di Palo, Ing. Domenico D’Oronzo, Arch. Fabio Gammacurta, Arch. Dorotea Gigante, Arch. Gaspare Grisolia, Ing. Enrico Marino, Laur. Arch. Antonio Sanna, Arch. Alessandro Spagli, Ing. Maurizio Tortora
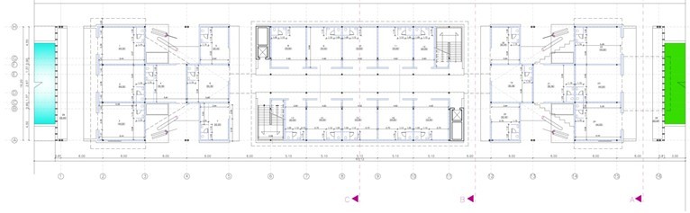
Mobilier urbains a usage commercial sur le canal 4 et 4bis
Progetto Urbano ad uso commerciale sul Canal IV e IV bis a Dakar. I canali hanno una lunghezza complessiva di circa 4.700 ml, una larghezza variabile da ml. 12 a 29 ed una profondità di circa 6. Realizzati in una parte della città per la regimentazione delle acque durante la stagione delle piogge. Oggi lungo entrambi i lati del canale 4 e 4 bis, attualmente, si svolge un'attività commerciale molto diversificata che occupa quasi completamente i marciapiedi, anche se sono molto larghi, rendendoli spesso impraticabili per il normale transito pedonale. Il canale impedisce anche il collegamento tra i due lati, dividendo così la città in due parti. L'obiettivo del progetto è di coprire le parti esposte con edifici commerciali sopra di esse, creando così un quartiere commerciale diversificato che si estende lungo il canale. In questo modo, si riuniscono le due parti della città e, allo stesso tempo, si crea un luogo di incontro culturale, di svago e di attrazione turistica; oltre che alla loro sanificazione. Il progetto prevede la costruzione di locali per attività commerciali che formano un ponte tra le due rive del Canal 4. I passaggi tra le due sponde opposte del canale sono costituiti dall’unità commerciale stessa, ogni 30 – 100 metri che collega le due rive del canale 4 e 4 bis. Ogni passaggio tra le due rive opposte del canale è composto da unità commerciali a sinistra e a destra di una via pedonale. Le attività previste: farmacie, banche, biblioteche, librerie, bar-disco, ristoranti, gallerie d’arte, sow room, terrazze panoramiche, aree ludiche.
Per: Comune di Dakar
Progettisti: Arch. Giovanni Corradetti, Arch. Gian Lorenzo Corradetti, Arch. Ferdinando Di Palo, Ing. Domenico D’Oronzo, Arch. Fabio Gammacurta, Arch. Dorotea Gigante, Arch. Gaspare Grisolia, Ing. Enrico Marino, Laur. Arch. Antonio Sanna, Arch. Alessandro Spagli, Ing. Maurizio Tortora
Aire d'Exposition International
Il complesso espositivo è costituito con padiglioni di circa 20.000 mq, due torri per uffici ed hotel. I parcheggi sono sotterranei. L’area totale per le esposizioni è di circa 18 ettari, quella per il tempo libero è di circa 2,5 ettari. Le funzioni: Spazi espositivi, parcheggi, torri, market crafts, shop, spazi per i giochi.
Per: Comune di Dakar - Senegal
Progettisti: Arch. Giovanni Corradetti, Arch. Gian Lorenzo Corradetti, Arch. Ferdinando Di Palo, Ing. Domenico D’Oronzo, Arch. Fabio Gammacurta, Arch. Dorotea Gigante, Arch. Gaspare Grisolia, Ing. Enrico Marino, Laur. Arch. Antonio Sanna, Arch. Alessandro Spagli, Ing. Maurizio Tortora
Maison Somone









Villa privata
Per: A.B.C. Dakar - Senagal
Progettisti: Arch. Gaspare Grisolia, Laur. Arch. Antonio Sanna
Maison Tuba
Villa privata
Per: A.B.C. Dakar - Senagal
Progettisti: Arch. Gaspare Grisolia, Laur. Arch. Antonio Sanna













































